*Illustrations on the page were prepared in metric units. Projects ordered to the United States will be prepared in feet. Waiting time for the project may be extended by several days
Barn House Nano
Rodzina Optimum [110 -220 m2]$ 660,00
- Usable area:126,43 m²
- Garage area:40,72 m²
- Minimum plot dimensions:22,33 x 19,85,5 m
- Development area:147,465 m²
- Height of building at ridge:8,44 m
- Roof angle:45°
Choose a package type:
The project price includes:
PROJECTS OPTIMIZED FOR CONSTRUCTION AND ENERGY EFFICIENCY
750 $0 $
PROJECT ADAPTED FOR AIR SOURCE HEAT PUMP AND UNDERFLOOR HEATING
750 $0 $
PROJECT WITH MECHANICAL VENTILATION AND HEAT RECOVERY
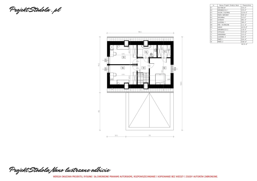
FLOOR PLANS:
- GROUND FLOOR 114.72 m²
- Attic 52.43 m²
SCHEMATIC SECTIONS:
- BARN L COMPACT SECTION THROUGH STAIRS
- BARN L COMPACT CROSS-SECTION THROUGH THE LIVING ROOM
FUNCTIONALITY:
The Barn House Nano is a compact home with a modern design that combines functionality with energy efficiency. Its spatial layout has been carefully planned to provide maximum comfort for its occupants, while maintaining simplicity of construction. The building form is compact and adheres to energy-saving principles, which is particularly important for low operational costs.
The entire layout is organized along a single communication axis, leading to a spacious living room with large glazing that allows for a natural connection between the interior, the surrounding landscape, and the terrace. The window dimensions have been optimized to offer the best visual experience while maintaining energy efficiency. Each room in the attic receives natural light through windows located in the external walls. There is also the possibility of omitting the garage, leaving only the main building in its minimalist form. Stodoła Nano can function as a single-family house or as a vacation rental property.
Day Zone:
Upon entering the building, you find yourself in a vestibule, which provides access to the utility room and the garage. Further along are an additional room and a bathroom. The spacious kitchen with an island flows seamlessly into the dining area and living room, forming an open, bright space for daily living. The living room stands out thanks to large glazing, which allows in plenty of natural light and opens up views of the garden.
Night Zone:
The attic features three comfortable bedrooms, one of which has a private walk-in closet. There is also a bathroom on this floor, providing convenience for the household.
The building’s façade is made of natural wooden materials, but it can be customized with other finishes based on the investor’s preferences. The Stodoła Nano project offers a modern and functional solution for those seeking a practical home with a minimalist aesthetic.
The Barn House Nano is a compact yet highly functional home with a modern, energy-efficient form. Its simple shape conceals a carefully thought-out interior layout that ensures comfort for its residents. The design includes a spacious two-car garage and a covered terrace, perfect for outdoor relaxation.
Ground Floor
Upon entering the home, you are welcomed into a vestibule equipped with a practical coat closet. From here, one can directly access the utility room, which in turn leads to the garage. Further into the ground floor, there is a comfortable guest room, a bathroom, and a large pantry that serves as excellent support for the kitchen.
The main living space consists of a generous living room connected with an open-plan kitchen featuring an island and a dining area. This area is enhanced by large glazing, allowing for plenty of natural light and a view of the garden. The living room also includes an elegant, open staircase leading to the upper floor.
Attic
The attic hosts three spacious bedrooms, one of which includes its own walk-in closet. This level also features a functional bathroom, ensuring daily comfort for the household.
The Barn House Nano is an excellent choice for those seeking a modern, comfortable, and energy-efficient home with an optimal floor area. The exterior façade is made from natural wooden materials, but it can always be customized with alternative finishes based on the investor’s preferences.
BUILDING STANDARD & CONSTRUCTION TECHNOLOGY
The house is designed in an energy-efficient standard compliant with the 2021 Technical Requirements – featuring underfloor heating via an air-source heat pump and mechanical ventilation with heat recovery (recuperation).
-
Masonry walls: two-layer – aerated concrete blocks + mineral wool; internal partition walls made of silicate
-
Façade: light wooden cladding, roof tiles, dark plaster accents
-
Floor slab: monolithic reinforced concrete
-
Stairs: reinforced concrete
-
Roof: ceramic or concrete roof tiles
The simple gable roof also enables the installation of photovoltaic panels.
BUILDING FORM
This compact, two-storey building is a modern barn-style house with a rectangular footprint and a symmetrical 45° gable roof. Attached to the main body is a side garage volume with a flat roof. Structurally, the garage can be omitted without issue. The overall design is cohesive and minimalist.
A striking architectural feature is the large glazed gable façade, which brings light into the living area. A roof overhang extends over the rear gable, dividing the glass façade into two parts — allowing the installation of external blinds on the lower portion. The upper overhang reduces solar heat gain and provides shade for the terrace.
The house’s construction is based on a straightforward structural layout with three axes, a simple gable roof, and a concrete floor slab — making it both easy and cost-effective to build.
FACADE OPTIONS
The modern exterior is finished in white plaster, with accent elements of light, charred wood. The charring technique protects the wood from external weather conditions. The house can also be adapted into a more “urban” version finished entirely in white plaster. Materials can be customized to suit local context or the investor’s personal taste.
SITE ADAPTATION
The base design is optimized for plots with a rear-facing scenic view. Various layout options are available. From an urban planning perspective, the building fits best on plots with access from the west, east, or north, allowing the longer elevation to face south — ideal for photovoltaic panel placement.
MINIMUM PLOT DIMENSIONS:
Due to its compact shape, the building can be positioned on a plot in various configurations.
The standard variant assumes plot access from the gable wall side, with the access road perpendicular to the ridge of the building and the entrance from that side. In this layout, the building opens up toward the garden area, while the garage shields the private zone.
Depending on the plot size, the project also allows for the garage to be omitted or relocated to the side wall of the building.
The drawing shows the minimum distances from the property boundary according to Polish building regulations. In your region, these distances may be different.
- VARIANT 1 Entry from the west and north, minimum plot dimensions 22.33×19.85m*.
However, it is possible to request a change in technology.
If you are interested in changing technology – contact us by e-mail.
FRAME BARN HOUSE
We have the ability to easily change the construction of the house to either steel or wood frame technology.
Benefits of frame technology:
- wooden frameworks are more resistant to shocks and seismic forces than traditional masonry structures
- a more environmentally friendly solution
- shorter construction time, shorter working hours for workers
PREFABRICATED BARN HOUSE
Barn Houses Ideas collaborate with a company that specializes in manufacturing building components, like: ceilings, walls, roof, etc.- in factories and then transporting and assembling them on site.
The technology allows for a construction time reduction by half. You are able to build your barn house in 4-5 months.
Prefabricated construction is about 15-25% more expensive than comprehensive traditional construction.
What do you gain in return? Among other things:
- an ecological house made of natural materials
- quick realization of the house even in 4-5 months, and thus also immunity to unstable prices on the market
- minimal involvement in the construction – without the restriction of teams and materi
greater usable area of the building due to the smaller thickness of the walls - a house situated on a foundation slab
- guidance and advice from an experienced team
- noticeably better quality and durability of individual components.
MODULAR BARN HOUSE
If you have any additional questions or you need advice – contact us
ADD-ONS TO THE PROJECT
During the ordering process (after adding to the cart), you can choose from a variety of add-ons for the project:
Files in .dwg
- Cost $380
Project drawings in editable .dwg format.
Additional visualizations
- Cost $250
If you consider a different material for the facade, you can order an alternative version of visualizations according to your needs. This includes 2 views – 1 from the front and 1 from the garden – with different materials in .jpg format. This service applies only to standard projects without modifications. Delivery time is up to 2.5 weeks.
In the Comments field describe the materials you would like to see in your version of the facade.
3d model in .skp
- Cost $380
Building model in editable .skp format with basic furnishings. Helpful for interior design
Custom add-ons
If you have specific requirements please contact us
WHAT DOES THE PROJECT INCLUDE?
You have two packages to choose from, which differ in their content.
A detailed comparison of the contents of each package can be found in the “Detailed Package Comparison” tab in Step 2 of the “How it Works” section.
An example of the content of each package is illustrated in the What does each package type include? section.
You can purchase add-ons such as:
– Files in .dwg – Project drawings in editable .dwg format.
– Additional visualizations – If you are considering a different material for the facade, you can order an alternative version of visualizations according to your needs. This includes 2 views – 1 from the front and 1 from the garden – with different materials in .jpg format. This service applies only to standard projects without modifications. Delivery time is up to 2.5 weeks. In the Comments field describe the materials you would like to see in your version of the facade.
– 3d model in .skp – Building model in editable .skp format with basic furnishings. Helpful for interior design
Prices of the add-ons can be found in the ADD-ONS section on the page of the selected project.
The option to select add-ons appears in the cart once the selected project has been added.
PROJECT ADAPTATION
The detailed solutions adopted in our design are tailored to the soil conditions and weather factors, such as the intensity of snowfall or rainfall specific to our region. These conditions directly influence, for example, the cross-sections of individual structural elements and the amount of necessary reinforcement. These solutions must be reviewed by a structural engineer.
In a each region, there may be different construction regulations regarding the size of buildings, foundation the building on the plot, the technology of building construction. Also building plots vary in terms of size, terrain shape, soil bearing capacity, climate zone, frost depth, and the needs of future residents.
That’s why every stock project have to be adjusted to local construction regulations by local architect/construction engineer.
Adjusting projects to local construction regulations means verification of compliance of the project with the local construction law and establish the location of the building on the plot.
In addition to the option to change the building technology and construction, described in the “Construction Options” tab for each project, it is also possible to introduce additional modifications. We handle both minor changes and more advanced ones, such as modifing the layout of rooms in the house or changing the appearance of the facade.
If you are interested or have any questions regarding this, please contact us.
Describe in an email the modifications you are interested in, and we will price them individually.
BARN HOUSES AFTER MODIFICATIONS
You can see all our project implementations here:
COMPLETED HOUSES
The Barn House Idea is not just a blog and ready-made projects; it’s a way of thinking about construction, about choices and compromises to achieve the desired goal with full satisfaction. The Barn Project is about minimalism, functionality, simplicity, and energy efficiency, all guided by construction economics.
Our Barn House M has been inhabited for 6 years now. We didn’t expect that our construction and design efforts, which we document on the blog and through social media, would create a community around this idea. It could be said that The Barn Project is more than just projects; it’s also a forum for exchanging opinions and experiences. It’s a community that you can also be a part of.
Check out the social media profiles of investors building houses according to our projects as well:
Barn House S @jak_możesz_to_sie_nie_buduj
Barn House S+ :
@nasza_splus
@stodola_clt
@stodola_kolo_kamienia
Barn House S+ Premium :
@s_premium_stodola
@troche.inna.stodola
@stodola_splus_premium
@nasza_polna_stodola
@stodola_premium
@budowajakzakare
@stodola_premium_podlasem
@stodolaspluspremiumnawsi
Barn House S+ Premium after modifications 2 @kolejna_stodola
Barn House S+ Exclusive after modifications @w_mojej_parterowce_
Barn House S + Long:
@stodola_wzg
@stodola.ulipy
@spluslong
@naszalongbarn
Barn House M @nad_morze.m_stodola
Barn House M parterowa @m_parterowa
Barn House M-L @naszeklepisko
Barn House M-L after modifications 2 @stodola_dziennik_budowy
Barn House with Atrium :
@sosnowe_atrium
@projekt_stodola_z_atrium
Barn House Optimum @iznowustodola
Barn House Double @projektpodwojnastodola
Barn House Smart + @moja_smart_stodola
Barn House L Compact @nasza_stodola_l_compact
Barn House L+ @oursecretbarn
FLOOR PLANS:
- GROUND FLOOR 114.72 m²
- Attic 52.43 m²
SCHEMATIC SECTIONS:
- BARN L COMPACT SECTION THROUGH STAIRS
- BARN L COMPACT CROSS-SECTION THROUGH THE LIVING ROOM
FUNCTIONALITY:
The Barn House Nano is a compact home with a modern design that combines functionality with energy efficiency. Its spatial layout has been carefully planned to provide maximum comfort for its occupants, while maintaining simplicity of construction. The building form is compact and adheres to energy-saving principles, which is particularly important for low operational costs.
The entire layout is organized along a single communication axis, leading to a spacious living room with large glazing that allows for a natural connection between the interior, the surrounding landscape, and the terrace. The window dimensions have been optimized to offer the best visual experience while maintaining energy efficiency. Each room in the attic receives natural light through windows located in the external walls. There is also the possibility of omitting the garage, leaving only the main building in its minimalist form. Stodoła Nano can function as a single-family house or as a vacation rental property.
Day Zone:
Upon entering the building, you find yourself in a vestibule, which provides access to the utility room and the garage. Further along are an additional room and a bathroom. The spacious kitchen with an island flows seamlessly into the dining area and living room, forming an open, bright space for daily living. The living room stands out thanks to large glazing, which allows in plenty of natural light and opens up views of the garden.
Night Zone:
The attic features three comfortable bedrooms, one of which has a private walk-in closet. There is also a bathroom on this floor, providing convenience for the household.
The building’s façade is made of natural wooden materials, but it can be customized with other finishes based on the investor’s preferences. The Stodoła Nano project offers a modern and functional solution for those seeking a practical home with a minimalist aesthetic.
The Barn House Nano is a compact yet highly functional home with a modern, energy-efficient form. Its simple shape conceals a carefully thought-out interior layout that ensures comfort for its residents. The design includes a spacious two-car garage and a covered terrace, perfect for outdoor relaxation.
Ground Floor
Upon entering the home, you are welcomed into a vestibule equipped with a practical coat closet. From here, one can directly access the utility room, which in turn leads to the garage. Further into the ground floor, there is a comfortable guest room, a bathroom, and a large pantry that serves as excellent support for the kitchen.
The main living space consists of a generous living room connected with an open-plan kitchen featuring an island and a dining area. This area is enhanced by large glazing, allowing for plenty of natural light and a view of the garden. The living room also includes an elegant, open staircase leading to the upper floor.
Attic
The attic hosts three spacious bedrooms, one of which includes its own walk-in closet. This level also features a functional bathroom, ensuring daily comfort for the household.
The Barn House Nano is an excellent choice for those seeking a modern, comfortable, and energy-efficient home with an optimal floor area. The exterior façade is made from natural wooden materials, but it can always be customized with alternative finishes based on the investor’s preferences.
BUILDING STANDARD & CONSTRUCTION TECHNOLOGY
The house is designed in an energy-efficient standard compliant with the 2021 Technical Requirements – featuring underfloor heating via an air-source heat pump and mechanical ventilation with heat recovery (recuperation).
-
Masonry walls: two-layer – aerated concrete blocks + mineral wool; internal partition walls made of silicate
-
Façade: light wooden cladding, roof tiles, dark plaster accents
-
Floor slab: monolithic reinforced concrete
-
Stairs: reinforced concrete
-
Roof: ceramic or concrete roof tiles
The simple gable roof also enables the installation of photovoltaic panels.
BUILDING FORM
This compact, two-storey building is a modern barn-style house with a rectangular footprint and a symmetrical 45° gable roof. Attached to the main body is a side garage volume with a flat roof. Structurally, the garage can be omitted without issue. The overall design is cohesive and minimalist.
A striking architectural feature is the large glazed gable façade, which brings light into the living area. A roof overhang extends over the rear gable, dividing the glass façade into two parts — allowing the installation of external blinds on the lower portion. The upper overhang reduces solar heat gain and provides shade for the terrace.
The house’s construction is based on a straightforward structural layout with three axes, a simple gable roof, and a concrete floor slab — making it both easy and cost-effective to build.
FACADE OPTIONS
The modern exterior is finished in white plaster, with accent elements of light, charred wood. The charring technique protects the wood from external weather conditions. The house can also be adapted into a more “urban” version finished entirely in white plaster. Materials can be customized to suit local context or the investor’s personal taste.
SITE ADAPTATION
The base design is optimized for plots with a rear-facing scenic view. Various layout options are available. From an urban planning perspective, the building fits best on plots with access from the west, east, or north, allowing the longer elevation to face south — ideal for photovoltaic panel placement.
MINIMUM PLOT DIMENSIONS:
Due to its compact shape, the building can be positioned on a plot in various configurations.
The standard variant assumes plot access from the gable wall side, with the access road perpendicular to the ridge of the building and the entrance from that side. In this layout, the building opens up toward the garden area, while the garage shields the private zone.
Depending on the plot size, the project also allows for the garage to be omitted or relocated to the side wall of the building.
The drawing shows the minimum distances from the property boundary according to Polish building regulations. In your region, these distances may be different.
- VARIANT 1 Entry from the west and north, minimum plot dimensions 22.33×19.85m*.
However, it is possible to request a change in technology.
If you are interested in changing technology – contact us by e-mail.
FRAME BARN HOUSE
We have the ability to easily change the construction of the house to either steel or wood frame technology.
Benefits of frame technology:
- wooden frameworks are more resistant to shocks and seismic forces than traditional masonry structures
- a more environmentally friendly solution
- shorter construction time, shorter working hours for workers
PREFABRICATED BARN HOUSE
Barn Houses Ideas collaborate with a company that specializes in manufacturing building components, like: ceilings, walls, roof, etc.- in factories and then transporting and assembling them on site.
The technology allows for a construction time reduction by half. You are able to build your barn house in 4-5 months.
Prefabricated construction is about 15-25% more expensive than comprehensive traditional construction.
What do you gain in return? Among other things:
- an ecological house made of natural materials
- quick realization of the house even in 4-5 months, and thus also immunity to unstable prices on the market
- minimal involvement in the construction – without the restriction of teams and materi
greater usable area of the building due to the smaller thickness of the walls - a house situated on a foundation slab
- guidance and advice from an experienced team
- noticeably better quality and durability of individual components.
MODULAR BARN HOUSE
If you have any additional questions or you need advice – contact us
ADD-ONS TO THE PROJECT
During the ordering process (after adding to the cart), you can choose from a variety of add-ons for the project:
Files in .dwg
- Cost $380
Project drawings in editable .dwg format.
Additional visualizations
- Cost $250
If you consider a different material for the facade, you can order an alternative version of visualizations according to your needs. This includes 2 views – 1 from the front and 1 from the garden – with different materials in .jpg format. This service applies only to standard projects without modifications. Delivery time is up to 2.5 weeks.
In the Comments field describe the materials you would like to see in your version of the facade.
3d model in .skp
- Cost $380
Building model in editable .skp format with basic furnishings. Helpful for interior design
Custom add-ons
If you have specific requirements please contact us
WHAT DOES THE PROJECT INCLUDE?
You have two packages to choose from, which differ in their content.
A detailed comparison of the contents of each package can be found in the “Detailed Package Comparison” tab in Step 2 of the “How it Works” section.
An example of the content of each package is illustrated in the What does each package type include? section.
You can purchase add-ons such as:
– Files in .dwg – Project drawings in editable .dwg format.
– Additional visualizations – If you are considering a different material for the facade, you can order an alternative version of visualizations according to your needs. This includes 2 views – 1 from the front and 1 from the garden – with different materials in .jpg format. This service applies only to standard projects without modifications. Delivery time is up to 2.5 weeks. In the Comments field describe the materials you would like to see in your version of the facade.
– 3d model in .skp – Building model in editable .skp format with basic furnishings. Helpful for interior design
Prices of the add-ons can be found in the ADD-ONS section on the page of the selected project.
The option to select add-ons appears in the cart once the selected project has been added.
PROJECT ADAPTATION
The detailed solutions adopted in our design are tailored to the soil conditions and weather factors, such as the intensity of snowfall or rainfall specific to our region. These conditions directly influence, for example, the cross-sections of individual structural elements and the amount of necessary reinforcement. These solutions must be reviewed by a structural engineer.
In a each region, there may be different construction regulations regarding the size of buildings, foundation the building on the plot, the technology of building construction. Also building plots vary in terms of size, terrain shape, soil bearing capacity, climate zone, frost depth, and the needs of future residents.
That’s why every stock project have to be adjusted to local construction regulations by local architect/construction engineer.
Adjusting projects to local construction regulations means verification of compliance of the project with the local construction law and establish the location of the building on the plot.
In addition to the option to change the building technology and construction, described in the “Construction Options” tab for each project, it is also possible to introduce additional modifications. We handle both minor changes and more advanced ones, such as modifing the layout of rooms in the house or changing the appearance of the facade.
If you are interested or have any questions regarding this, please contact us.
Describe in an email the modifications you are interested in, and we will price them individually.
BARN HOUSES AFTER MODIFICATIONS
You can see all our project implementations here:
COMPLETED HOUSES
The Barn House Idea is not just a blog and ready-made projects; it’s a way of thinking about construction, about choices and compromises to achieve the desired goal with full satisfaction. The Barn Project is about minimalism, functionality, simplicity, and energy efficiency, all guided by construction economics.
Our Barn House M has been inhabited for 6 years now. We didn’t expect that our construction and design efforts, which we document on the blog and through social media, would create a community around this idea. It could be said that The Barn Project is more than just projects; it’s also a forum for exchanging opinions and experiences. It’s a community that you can also be a part of.
Check out the social media profiles of investors building houses according to our projects as well:
Barn House S @jak_możesz_to_sie_nie_buduj
Barn House S+ :
@nasza_splus
@stodola_clt
@stodola_kolo_kamienia
Barn House S+ Premium :
@s_premium_stodola
@troche.inna.stodola
@stodola_splus_premium
@nasza_polna_stodola
@stodola_premium
@budowajakzakare
@stodola_premium_podlasem
@stodolaspluspremiumnawsi
Barn House S+ Premium after modifications 2 @kolejna_stodola
Barn House S+ Exclusive after modifications @w_mojej_parterowce_
Barn House S + Long:
@stodola_wzg
@stodola.ulipy
@spluslong
@naszalongbarn
Barn House M @nad_morze.m_stodola
Barn House M parterowa @m_parterowa
Barn House M-L @naszeklepisko
Barn House M-L after modifications 2 @stodola_dziennik_budowy
Barn House with Atrium :
@sosnowe_atrium
@projekt_stodola_z_atrium
Barn House Optimum @iznowustodola
Barn House Double @projektpodwojnastodola
Barn House Smart + @moja_smart_stodola
Barn House L Compact @nasza_stodola_l_compact
Barn House L+ @oursecretbarn













